MM1 GAMBARA, VENDESI ESCLUSIVO ATTICO SU DUE LIVELLI CON TERRAZZI PANORAMICI E BOX.
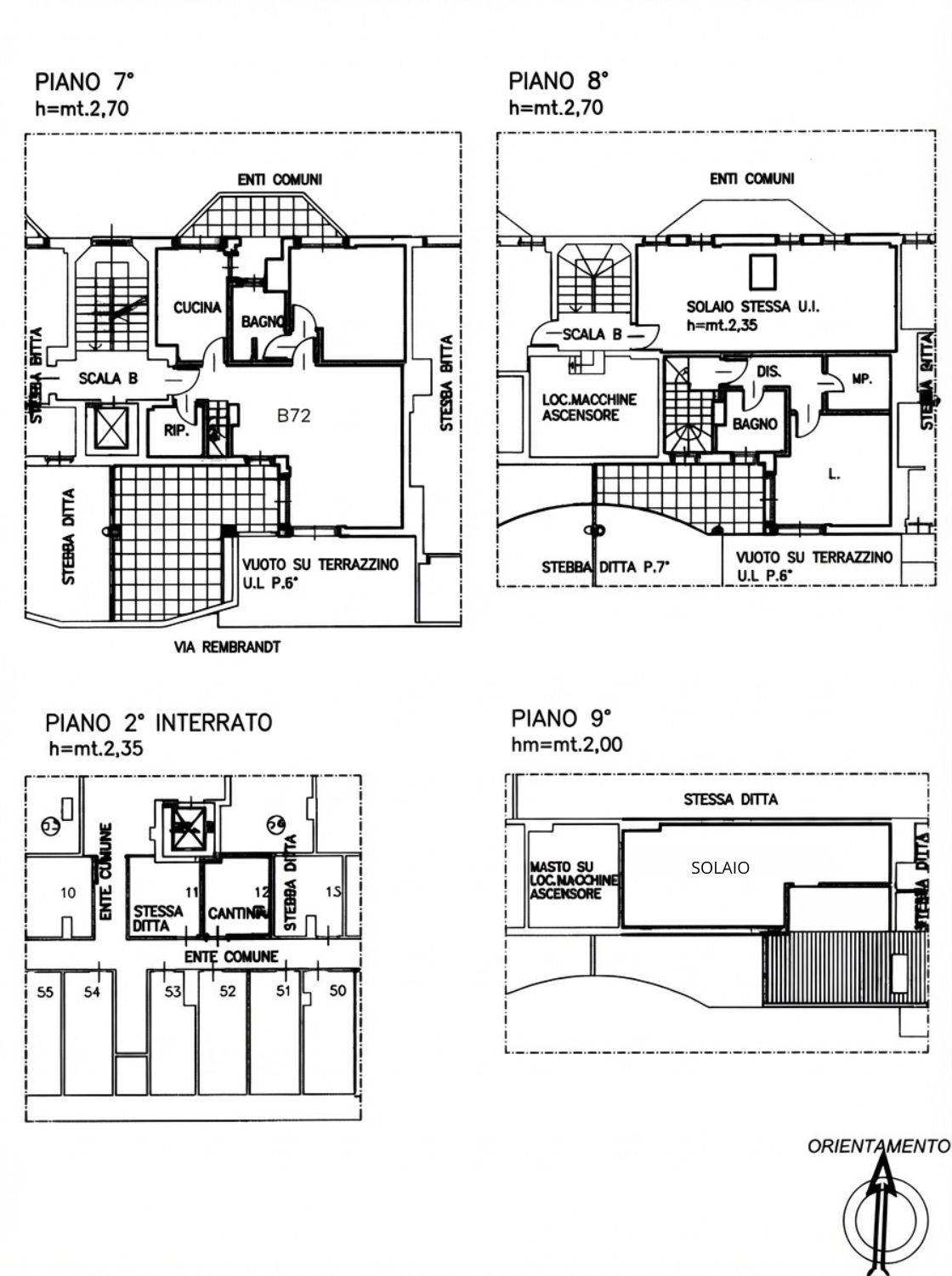
Via Rembrandt, in un elegante contesto signorile di recente costruzione con portineria, Kers Immobiliare propone esclusivo attico su due livelli, unico per luminosità e vista panoramica. Il piano principale, settimo dello stabile, si apre su un ampio soggiorno con accesso diretto al primo terrazzo in parte loggiato di 25mq ca, affiancato da una cucina abitabile con spaziosa balconata, camera matrimoniale, bagno finestrato e ripostiglio. Una scala interna conduce al piano superiore, ottavo, dove troviamo una seconda camera con soppalco vivibile (SPP) di 29mq ca. (H 2,00 m) e comodo locale guardaroba, un secondo bagno finestrato e uno splendido terrazzo solarium privato di 11mq ca.
A completare la proprietà, un’ulteriore unità indipendente (SPP) di 35mq ca composta da due locali al piano ottavo con bagno completo finestrato, perfetto anche come studio o spazio ospiti. L’immobile, libero subito, vanta una doppia esposizione e dotazioni d’alto livello. Superficie catastale dell’intera soluzione 141mq.
Includono la soluzione una cantina e un ampio box auto nello stabile (proposto a € 65.000), direttamente collegato con ascensore.
Una residenza rara che unisce ampi spazi esterni e massima privacy in una delle zone meglio collegate della città.
Riscaldamento autonomo, spese condominiali € 2.500/anno. Classe F – 155,45 kWh/m²a.
CODICE ANNUNCIO: 26/035 Rembrandt
Le informazioni della presente scheda sono puramente indicative e non costituiscono condizioni contrattuali.
Gli incarichi Kers Immobiliare sono proposti attraverso l’esclusiva formula “Acquisto Sicuro” a maggior garanzia dei clienti acquirenti. Per qualsiasi consulenza immobiliare contatti uno dei nostri Brokers.
KERS Immobiliare è aperta alle collaborazioni con altri Agenti e Agenzie attraverso la sottoscrizione del Patto di Collaborazione e Trasparenza e Codice Etico
Kers Immobiliare sta cercando per la propria clientela immobili di diversa tipologia, anche da ristrutturare. Ci contatti per una consulenza immobiliare gratuita
La Privacy Policy è consultabile sul nostro sito