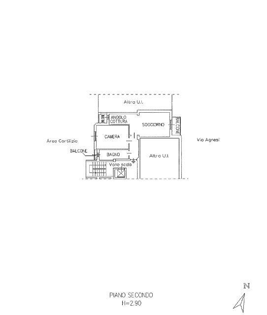
PORTA ROMANA, AFFITTASI AMPIO BILOCALE CON BALCONE ARREDATO. Via Agnesi, in ottimo contesto civile appena ristrutturato nelle parti comuni, Kers Immobiliare propone in locazione appartamento finemente ristrutturato ed arredato con doppia esposizione composto da ingresso con disimpegno (libreria), soggiorno vivibile con affaccio su balcone, cucina a vista completa di tutti gli elettrodomestici, comoda camera matrimoniale con angolo studio e ampio bagno (finestrato) completo con comodo box doccia. Rifiniture di alto livello, parquet in tutta la casa, infissi doppio vetro con zanzariere, aria condizionata. Riscaldamento centralizzato a termosifoni spese euro 300 mese. Classe energetica D 122.52kwh/mqa.
CODICE ANNUNCIO: 26/040 Agnesi
Le informazioni della presente scheda sono puramente indicative e non costituiscono condizioni contrattuali.
Gli incarichi Kers Immobiliare sono proposti attraverso l’esclusiva formula “Acquisto Sicuro” a maggior garanzia dei clienti acquirenti. Per qualsiasi consulenza immobiliare contatti uno dei nostri Brokers.
KERS Immobiliare è aperta alle collaborazioni con altri Agenti e Agenzie attraverso la sottoscrizione del Patto di Collaborazione e Trasparenza e Codice Etico
Kers Immobiliare sta cercando per la propria clientela immobili di diversa tipologia, anche da ristrutturare. Ci contatti per una consulenza immobiliare gratuita
La Privacy Policy è consultabile sul nostro sito